The Overarching “STORY” of the Project
We found one another through tragedy. Strangers in the same town united in a common understanding… Home Means Family.
For the last fifteen years, I have been ringing in the New Year with my friends on Twin Oaks Drive. Each celebration promising a new beginning . A redemption of sorts. What I came to learn one New Year’s Eve was that just a few nights before a fire destroyed a house less than two blocks from where I was celebrating.
2 am December 23, 2010 -- flames fully engulf the Atrium style Ranch – starting on the outside by the front door in the courtyard and blazing through the attic rafters. The flames licked, torched and destroyed all in their wake. Flames burnt through the ceiling and enveloped the front door and bedrooms, where the kids slept, blocking any exit.
What I wasn’t told was that a few weeks before, the Family bought a new front door. Glass inserts. The intense temperature of the fire compromised the glass inserts and they broke – literally popped – with incredible intensity. It was this sound that woke Bill that fateful night.
Bill followed the sound of the explosion and found his entire house lit red – it was literally on fire and burning from the outside in. A site unbelievable beyond belief. Bill tried to fight the fire with a fire extinguisher and quickly realized it was futile. From attic rafters to encompassing walls, the fire was circling towards his family. He yelled for them to run.
They did. Charleen and Bill saved the three children and dogs and Charleen broke her foot in the process . They all escaped.
A family of five was spared but lost everything. Literally they ran out of the house two days before Christmas in their bare feet with nothing on their backs into 20 degree bone-chilling temps to settle across the street on the curb and watch their home burn to the ground. They survived. All they knew was lost. Burnt to the ground in front of their eyes.
According to the Kings Park Fire Chief, they beat the odds. A fire like this at least claims one life – they were lucky. They were also cold, frozen, lost and traumatized.
So this is where I enter. I decided I wanted to start the New Year with some Soul in my life.
I’m an Interior Designer and offered my talents to the Family - pro bono – if they would have me. Charleen said yes… and here we are.
The family and my Firm have spent the last twelve months rebuilding along with an incredibly talented team of dedicated Professionals. (See Addendum). The ‘After’ photos you are viewing were shot on Dec 23rd 2011 – exactly one year TO THE DAY that the fire swept through their lives. Winds of Change.
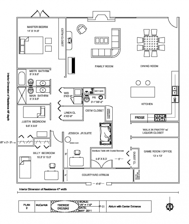
My first introduction to Charleen was early on – merely two weeks after the Fire. Charleen met me at their home, unlocked the front door and invited me inside. When Charleen escorted me through the fire-scorched debris of the remnants of their home, what struck me was even though everything they owned was literally melted this family managed to remain in tact. Their strength was their love for one another. They literally love being together. I asked Charleen what she liked most about her home and what needed improvement. Her answer: “I didn’t like the fact that when I was in the kitchen making dinner, I couldn’t be with my family. I could hear Bill and the Kids laughing and having fun in the other room, but I was separated from them.” Keep in mind that Charleen and Bill had completely renovated their kitchen not five months before the fire destroyed it. This stuck with me. This and the twisted vestige of iron, plastic, glass and melted dreams.
What I also found surprising was that they would crowd into the smallest room in the house to be together. The self appointed ‘family room’ was right off the kitchen and was in the smallest corner of the house, completely disconnected from the rest of the rooms on the main level, and with only one small supporting window.
I remember looking upwards – through the fire scorched 2 x 4’s directly into the attic – marveling at the amount of space the fire had actually created. Then it hit me. We would redo the entire footprint of the house continuing with what the fire started. We would break through and regain space for this active Family of five. This design would be a completely open floor plan.
The parti for the home was simple: Togetherness and Sparkle. (Sparkle is Charleen…think Versailles! Her favorite color is cream with any type of sparkle and she is all about crystal)




10b6.png?itok=bgX-YGTc)




